
Haus kaufen in Dippach (Gemeinde) - Westen von Luxemburg
Fischbach Realtors Developers
Doppelhaushälfte 4 Zimmer zu verkaufen in Bettange-sur-Mess
Haus

229m2

4 Zimmer

1
Fischbach Realtors Developers
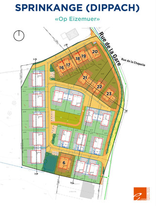
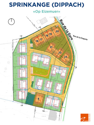
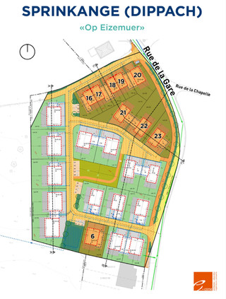
Haus 4 Zimmer zu verkaufen in Sprinkange
Haus

147m2

4 Zimmer

2
Fischbach Realtors Developers
Haus 4 Zimmer zu verkaufen in Sprinkange
Haus

256m2

4 Zimmer

2
Fischbach Realtors Developers
Doppelhaushälfte 4 Zimmer zu verkaufen in Dippach
Haus

229m2

4 Zimmer

1
Calteux
Doppelhaushälfte 4 Zimmer zu verkaufen in Dippach-Gare
Haus

229m2

4 Zimmer

4.1 are(s)

1
Calteux
Doppelhaushälfte 4 Zimmer zu verkaufen in Dippach-Gare
Haus

229m2

4 Zimmer

4.1 are(s)

1










