
Wohnsiedlungen kaufen - Westen von Luxemburg

LA Immo Sàrl
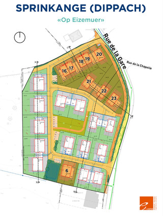
Wohnsiedlungen zu verkaufen in Sprinkange
Wohnsiedlungen & Wohnanlage

257m2 bis 260m2
LA Immo Sàrl
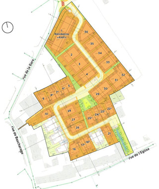
Wohnsiedlungen zu verkaufen in Hautcharage
Wohnsiedlungen & Wohnanlage

5m2 bis 196m2
| Grundstück |
-
|
5,46 m2 | 532 350 € | ![]() |
| Grundstück |
-
|
4,89 m2 | 476 775 € | ![]() |
| Haus |
4
|
159 m2 | 1 343 000 € | ![]() |
| Haus |
3
|
188 m2 | 1 198 000 € | ![]() |
| Haus |
3
|
196 m2 | 1 162 000 € | ![]() |













