Description

The Domaine des Vignes offers apartments and houses with a warm, modern design. At the heart of the project, communal gardens and pedestrian areas will delight families.
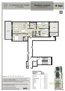
RESIDENCE : Jurançon
LOT n°44A.2.6
2-bedroom 96.42m2 apartment on the 2nd floor of the residence.
Composed as follows:
An entrance hall leading to a living room with open kitchen giving access to a first terrace of 18.87m2.
The sleeping area comprises a storeroom, separate toilet, bathroom and 2 bedrooms with access to the second 14.42m2 terrace. The third bedroom has its own bathroom and access to the terrace.
Additional information :
- 1 cellar included in the sale price
- 2 dedicated covered parking spaces not included in the sale price of the apartment, valued at €78,330.00 incl. 17% VAT.
Energy class: A
Public transport: Bus stop less than a minute away and CFL Mertert and Wasserbillig stations leading to Luxembourg City
Close to shops (COPAL) and crèche
A1 freeway access less than 3km away
20 minutes from Kirchberg by car.
Prices include 3% VAT*.
VAT at the super-reduced rate of 3%, subject to approval by the relevant authorities.
For more information: www.hektar.lu

Show more

Show less

See project

Location

Attributes and Features

Wi482136Wortimmo.lu ref. no
110.31 m2Surface area
New / On plan State
ApartmentProperty subtype
ApartmentProperty type
44A.2.6 Existant Agency ref. no
Monthly running cost Not provided by the agency

2Floor
2Bathrooms

33 m2  Terrace

With lift
Triple-glazing
Has laundry room

DepositNot provided by the agency

Heat insulation
  • Heat pump
  • A dual-flow thermodynamic CMV
  • Subfloor heating
Heating
HEKTAR
764 647 €
icon_Wortimmo_Superficie.svg

110m2

icon_Wortimmo_Chambre.svg

2

icon_Wortimmo_Salle-de-bain.svg

2

Informations

detail_page_right_detail_appartementApartment
detail_page_right_detail_basementFloor: 2
detail_page_right_detail_gaz Heat pump , A dual-flow thermodynamic CMV , Subfloor heating
detail_page_right_detail_houseNew
Energy class
Axa