



















Au sein de la résidence LUMINEA, idéalement située à Mamer, offrant l'équilibre parfait entre l'accessibilité urbaine et une qualité de vie sereine, accès aisé aux infrastructures (transports en commun gratuits, écoles, et axes routiers A6), à seulement 9-10 kilomètres de Luxembourg ville
Progetra Luxembourg vous propose cet appartement en VEFA (APPT.04) au 1er étage :
D'une surface pondérée de 123.59 m²
soit une surface habitable de 119.59 m²
Comportant 3 chambres, 1 séjour-cuisine, 2 salles de bains et 1 terrasse de 9.98m².
A noter que l'agencement des cloisons intérieurs de l'appartement peut être encore modifiés si vous le désirez suivant possibilitée technique.
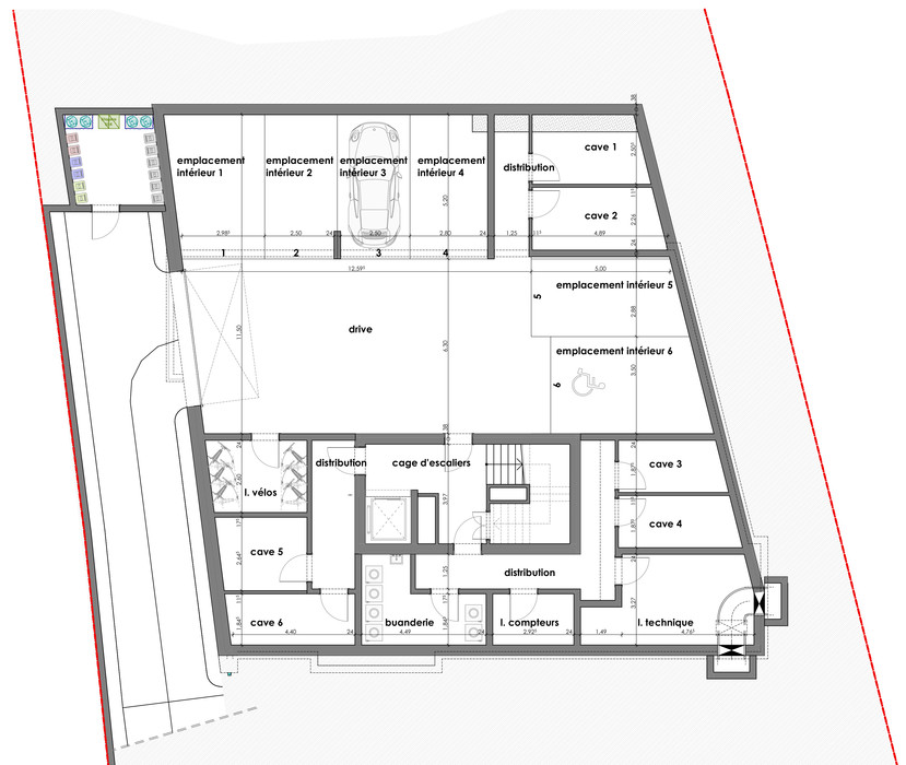
Le prix affiché comprend 1 emplacement de parking intérieur ainsi qu'une de cave de 8.20m²
Classe énergétique ABA+
Les prix affichés sont calculés sur base de la TVA 3 %, sous réserve de l'acceptation de votre dossier, auprès de l'administration de l'enregistrement de TVA.
Infos complémentaires
par télephone au : + 352 621 19 49 89.
par mail : [email protected]
Documentations complète sur rendez-vous ! Sans engagement!
Show more
Show less
