





































Show more
Show less

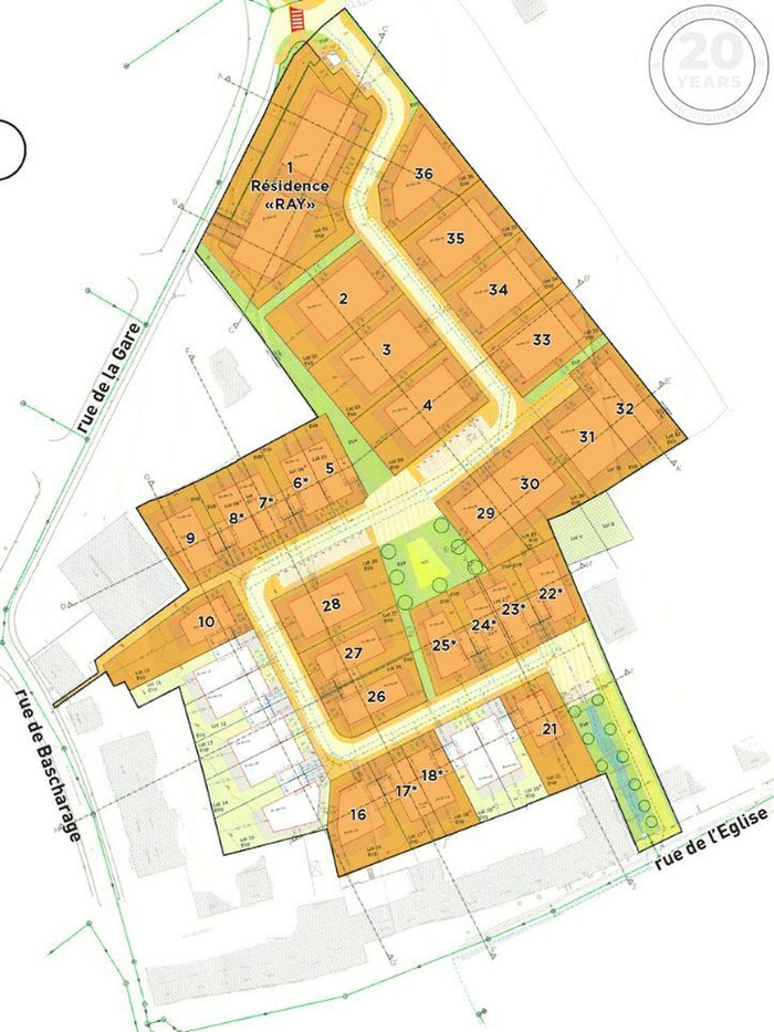
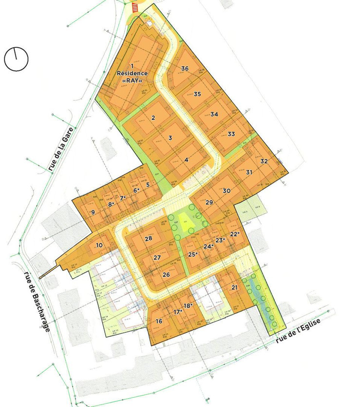
196m2

3

2
Informations
House
Heat pump
, A dual-flow thermodynamic CMV
, Subfloor heating
, Controlled mechanical ventilation (CMV)
New