







































HD33 Real Estate in collaboration with Lux Construction Investment Ltd. offers off-plan sale this terraced house perfectly located in the heart of the commune of Strassen.
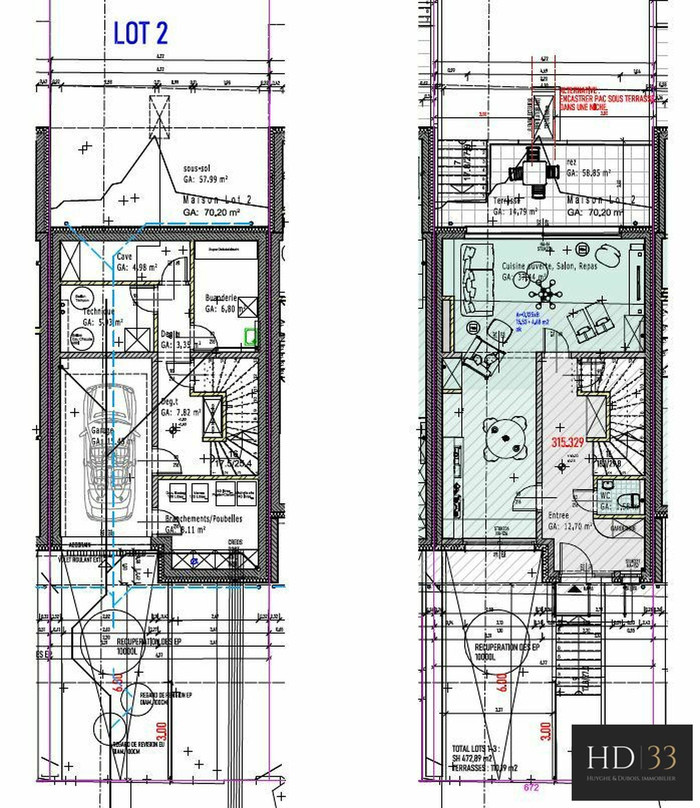
The house in Lot 2 has a living area of 168 square meters, distributed as follows:
On the ground floor, you will access the property through an entrance hall with a guest toilet and the staircase leading to the upper floors.
A large living room with open kitchen of almost 38 square meters with direct access to the terrace and the garden below.
On the first floor, you will have two bedrooms at your disposal (21.50 and 13 square meters respectively), each with a private shower room and toilet. The master bedroom has a 4.40 square meter balcony facing south-west. The floor also includes a dressing room that can be accessed from the room dependingEgoyMDI1MDUxNS4wIKXMDSoASAFQAw%3D%3D
For more information, please contact Mr. Dino Backes at +352 661 333 370 or by email at [email protected]
Or Mister Alban Huyghe +352 661 705 033 par mail [email protected]
Show more
Show less

