







Show more
Show less

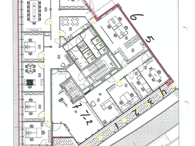
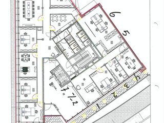
418m2
Informations
Construction year 2015
Office
Central heating
, Gas heating
Old