Description

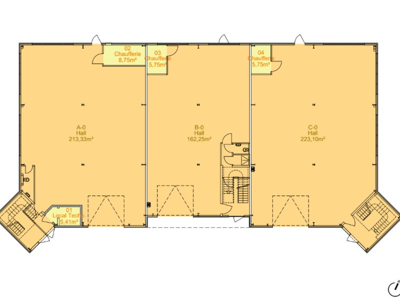
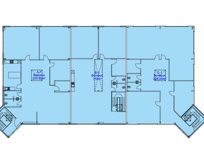
228.85 SQM INDIVISIBLE OFFICE IN MODERN INDUSTRIAL-OTHER
Avail: Immediate
Our Ref: L-086098-086100
Tenure: Pleine Propriété (Freehold)

ACCESS:
Highway: E411 nearby
Bus: 222 Steinfort-Luxembourg
Station: Kleinbettingen Station 3km away

FEATURES:
Floor Type: Vinyl
IT Security: Fire detection

Parking may be available; please discuss with your negotiator.



Please contact us for a detailed Prospectus.
Veuillez nous contacter pour un Prospectus detaillé.

Show more

Show less

Location

Attributes and Features

Wi481818Wortimmo.lu ref. no
228.85 m2Surface area
Old State
OfficeProperty subtype
OfficeProperty type
Monthly running cost Not provided by the agency




DepositNot provided by the agency

RealCorp Luxembourg
4 577 €
icon_Wortimmo_Superficie.svg

229m2

Informations

detail_page_right_detail_appartementOffice
detail_page_right_detail_houseOld
Axa