Description

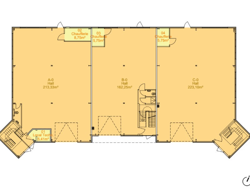
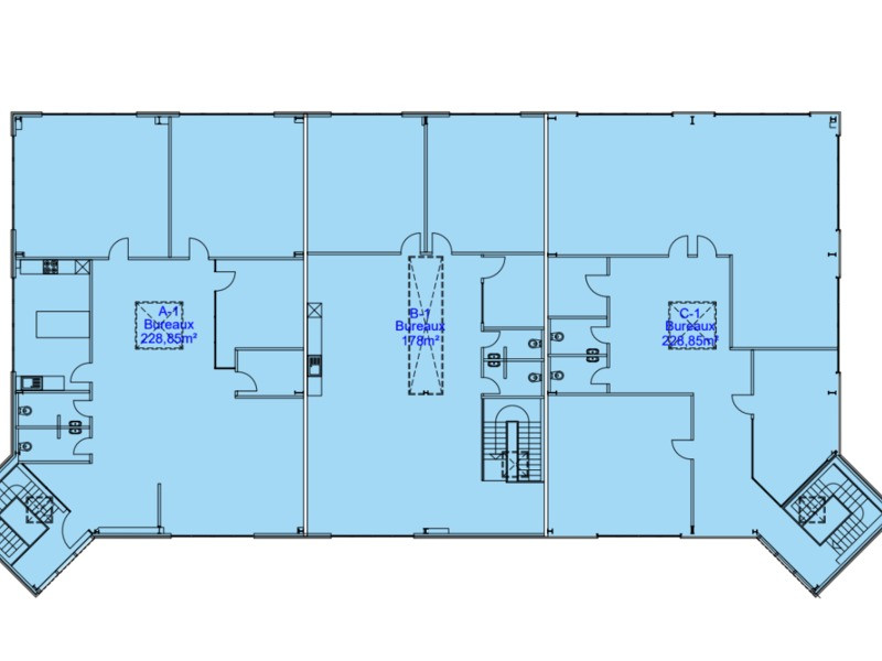
680.8 SQM DIVISIBLE FROM 228.85 SQM OFFICE IN MODERN INDUSTRIAL-OTHER
Avail: Immediate
Our Ref: L-086098-586103
Tenure: Pleine Propriété (Freehold)

ACCESS:
Highway: E411 nearby
Bus: 222 Steinfort-Luxembourg
Station: Kleinbettingen Station 3km away

FEATURES:
Floor Type: Vinyl
IT Security: Fire detection

Parking may be available; please discuss with your negotiator.



Please contact us for a detailed Prospectus.
Veuillez nous contacter pour un Prospectus detaillé.

Show more

Show less

Location

Attributes and Features

Wi481817Wortimmo.lu ref. no
680.8 m2Surface
Old State
Warehouse/storage areaProperty subtype
Shop & PremisesProperty type
Monthly running cost Not provided by the agency




DepositNot provided by the agency

RealCorp Luxembourg
12 501 €
icon_Wortimmo_Superficie.svg

681m2

Informations

detail_page_right_detail_appartementWarehouse/storage area
detail_page_right_detail_houseOld
Axa