Description

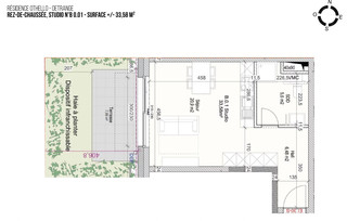
B.0.1 - Bloc B - Rez de Chaussée

Espace immo vous présente ce studio, dans la résidence Othello à Oetrange,

D'une surface de 38m2, et situé au RDC de la résidence, l'appartement est agencé comme suit :

- un hall d'entrée
- un bel espace salon séjour cuisine lumineux avec accès à la terrasse exposé ouest
- une salle de douche / WC / vasque


Un emplacement intérieur et une cave viennent compléter ce bien

360.589€ TVA 3% inclus (sous reserve d'acceptation par l'administration)

Pour plus d'informations ou demande de rendez vous, merci de nous contacter par email à [email protected] ou par téléphone au +352 26 43 03 86

Voir plus

Voir moins

Localisation

Faits et caractéristiques

Wi517533N° réf. Wortimmo.lu
38 m2Surface habitable
Neuf État
AppartementSous-type de bien
AppartementType de bien
86686032HN° réf. agence
Charges mensuelles Non renseigné par l'agence

1Pièce(s) principale(s)

7.54 m2  Terrasse
Parking
  • Garage (1)

Triple vitrage
Salle de douche

AccompteNon renseigné par l'agence

Isolation thermique
Espace Immo
360 589 €
icon_Wortimmo_Superficie.svg

38m2

Informations

detail_page_right_detail_appartementAppartement
detail_page_right_detail_houseNeuf
Classe énergétique
Axa