Description

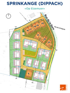
Dans le nouveau lotissement "Op Eizemuer" situé à Sprinkrange, maisons unifamiliales à vendre
sur terrains compris entre 4.61 et 4,94 ares.
ENVIRONS
Sprinkange appartient à la commune de Dippach dans le canton de Capellen et se situe au Sud-ouest du pays. La commune se compose des localités de Bettange-sur-Mess, Dippach, Schouweiler et Sprinkange.
À Schouweiler, qui se trouve juste à côté, on trouve les fonctions administratives de la commune ainsi que des petits magasins pour les besoins quotidiens. À Bascharage (4,5 km), il y a plusieurs grands supermarchés, restaurants, stations-service et magasins. De là, on peut également rejoindre l'autoroute A13 qui traverse le sud du Luxembourg.
Les grands centres commerciaux «La Belle Etoile» et «City Concorde» à Bertrange se trouvent à seulement 10 minutes en voiture. Le centre aquatique «Les Thermes» à Strassen est situé à 15 mins et invite à passer un moment de détente dans son espace Wellness.
Le nouveau circuit circulaire «Rondwee Gemeng Dippech» passe par l'église de Bettange-sur-Mess, longe les rails du chemin de fer vers Sprinkange puis emprunte la route principale pour revenir vers Bettange-sur-Mess. Il offre de beaux paysages en toute saison et est une occasion de sortie en famille.
Le tracé cyclable juste à côté du lotissement relie les pistes nationales PC12 de «l'Attert» et PC9 «Faubourg Minier» en passant par les localités de Schouweiler et Sprinkange.
MOBILITE
La commune de Dippach est desservie par plusieurs lignes du réseau de bus RGTR et des CFL ainsi que par un «Late Night Bus» durant les nuits de vendredi et samedi de 1:00 à 3:47 le matin.
L'arrêt de bus «Beim Kräiz» est à proximité immédiate du lotissement et permet uniquement le transport scolaire des enfants qui fréquentent l'école de Schouweiler. Le PAP prévoit toutefois l'installation d'un nouvel abribus pour le transport régulier, à environ 20m de l'arrêt «Beim Kräiz».
Un autre arrêt de bus «Bei der aler Schoul» se trouve sur la route de Longwy, à environ 650 m du lotissement, soit 8 min à pied.
Ligne 61U: Rodange – Dommeldange – Steinsel, Z.I.
Ligne 701: Luxembourg-Centre – Bascharage – Obercorn
Ligne 702: Luxembourg-Centre – Bascharage – Rodange
Ligne 703: Luxembourg-Centre – Pétange – Aubange (B) – Mont-Saint-Martin (F)
Ligne 711: Late night Bus vers Luxembourg-Ville
Les lycées de Luxembourg-Ville, Mamer et Lamadelaine sont desservis par les lignes de bus D21, E15, N07, G06 et G07.
La gare des CFL «Schouweiler, Gare» se situe à environ 500 m du lotissement soit 6 min à pied. Elle est desservie par la ligne 70 du réseau des Chemins de fer luxembourgeois (CFL), qui relie Longwy en Belgique à la ville de Luxembourg.
ECOLES
L'ancienne école précoce de Bettange-sur-Mess a été récemment déménagée vers le nouveau site scolaire à Schouweiler. Ce nouveau campus scolaire multifonctionnel, destiné à l'éducation précoce et aux cycles 2 – 4 ainsi qu'à l'éducation sportive, est à disposition de tous les concernés depuis la rentrée scolaire 2016/2017. Une maison relais accueille les enfants au sein de l'ancien bâtiment scolaire de Schouweiler.
On y trouve également une maison des jeunes et le nouveau foyer des «Dippecher Dachsen», les scouts et guides de la commune de Dippach.
Dans les environs, il y a des lycées à Luxembourg-Ville, à Mamer et à Lamadelaine, qui sont tous desservis par les transports en commun et donc faciles d'accès.
DISTANCES
Administration Communale de Dippach: 1,5 km
Gare de Schouweiler: 450 m
Site scolaire Schouweiler: 900 m
Cactus Bascharage: 6,2 km
Shopping Center «La Belle Etoile»: 11,6 km
Shopping Center «City Concorde»: 8,8 km
«Les Thermes» Strassen: 11,6 km
Luxembourg-Ville: 14,2 km
Esch-Belval: 12,1 km
Aéroport Findel: 27,1 km
Réf. : SPRINKANGE 0804 RK

Voir plus

Voir moins

Localisation

Faits et caractéristiques

Wi517791N° réf. Wortimmo.lu
Neuf État
LotissementSous-type de bien
Lotissement & RésidenceType de bien
SPRINKANGE 0804 RKN° réf. agence
Charges mensuelles Non renseigné par l'agence




AccompteNon renseigné par l'agence

Calteux
1 314 000 €

Informations

detail_page_right_detail_appartementLotissement
detail_page_right_detail_houseNeuf
Axa
Raphaël KIEFFER