Description

Dans un nouveau lotissement situé à Hellange, nouvelle construction de maisons unifamiliales jumelées par le garage d'une surface habitable de plus de 180 m2 à partir de 1.327.000 euros.
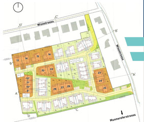
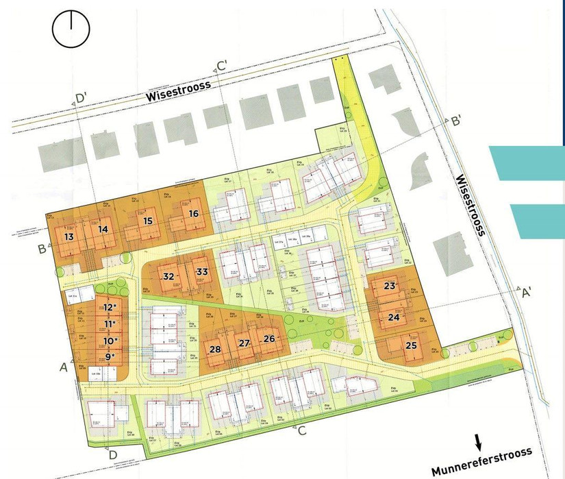
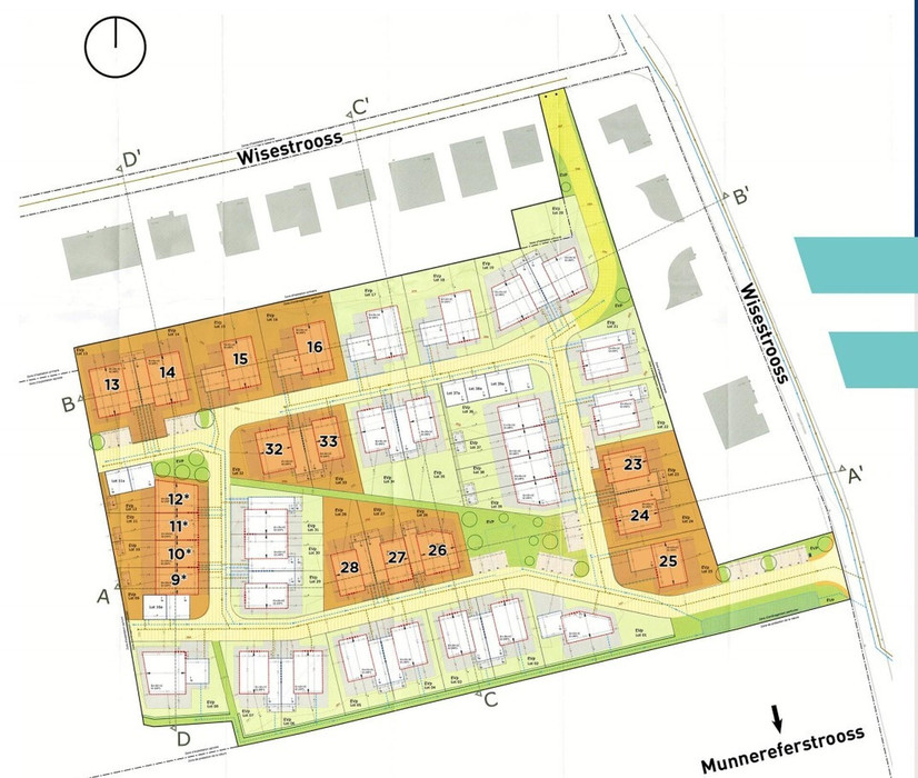
Le futur lotissement Iwwert der Sauerwiss se trouve au croisement entre Wisestrooss et la Route de Mondorf à Hellange et comptera de nombreuses maisons unifamiliales.
Plus d'informations en nous contactant au +352 26 29 68 08.
Réf. agence : HELLANGE 3103 RK

Voir plus

Voir moins

Localisation

Faits et caractéristiques

Wi517733N° réf. Wortimmo.lu
Neuf / Sur plan État
LotissementSous-type de bien
Lotissement & RésidenceType de bien
HELLANGE 0804 LNN° réf. agence
Charges mensuelles Non renseigné par l'agence




AccompteNon renseigné par l'agence

  • Collectif
Chauffage
Calteux
1 240 000 €

Informations

detail_page_right_detail_appartementLotissement
detail_page_right_detail_gaz Collectif
detail_page_right_detail_houseNeuf
Axa
Secrétariat CALTEUX