Description

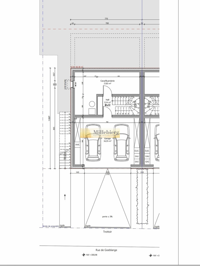
Nouvelle construction d'une maison jumelée comprenant 4 chambres et 2 salles de bain, dont une suite parentale. Au sous-sol il y aura un double garage de 35 m2, une cave et la chambre technique.
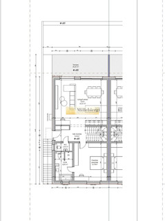
Au rez de chaussée il y aura un séjour de 42,5 m2 avec cuisine ouverte avec accès sur la terrasse 26 m2 et le jardin, un hall d'entrée, un WC séparé, la chambre parentale de 22,70 m2 avec une salle de bain privée de 9 m2.
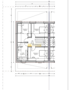
A l'étage il y aura 3 chambres et une salle de bain.
Surface du terrain 4a40ca.

Voir plus

Voir moins

Localisation

Faits et caractéristiques

Wi511727N° réf. Wortimmo.lu
154 m2Surface habitable
Neuf État
2026Année de construction
Maison jumeléeSous-type de bien
MaisonType de bien
1530691N° réf. agence
Charges mensuelles 2,34 €

2Salle(s) de bain
Disponible Cave

26 m2  Terrasse
250.00 m2  Jardin
15 m2  Balcon
Parking
  • Garage (2)
4,4 aresSuperficie du terrain

Porte de sécurité
Volets électriques
Triple vitrage
W.C. séparé
Possède une buanderie

AccompteNon renseigné par l'agence

Isolation thermique
  • Pompe à chaleur
  • VMC double flux
  • Au sol
Chauffage
Millebierg
1 196 000 €
icon_Wortimmo_Superficie.svg

154m2

icon_Wortimmo_Chambre.svg

4

icon_Wortimmo_Salle-de-bain.svg

2

Informations

detail_page_right_detail_calendarAnnée de construction 2026
detail_page_right_detail_appartementMaison jumelée
detail_page_right_detail_basement Cave
detail_page_right_detail_gaz Pompe à chaleur , VMC double flux , Au sol
detail_page_right_detail_houseNeuf
Classe énergétique
Axa