





































Voir plus
Voir moins

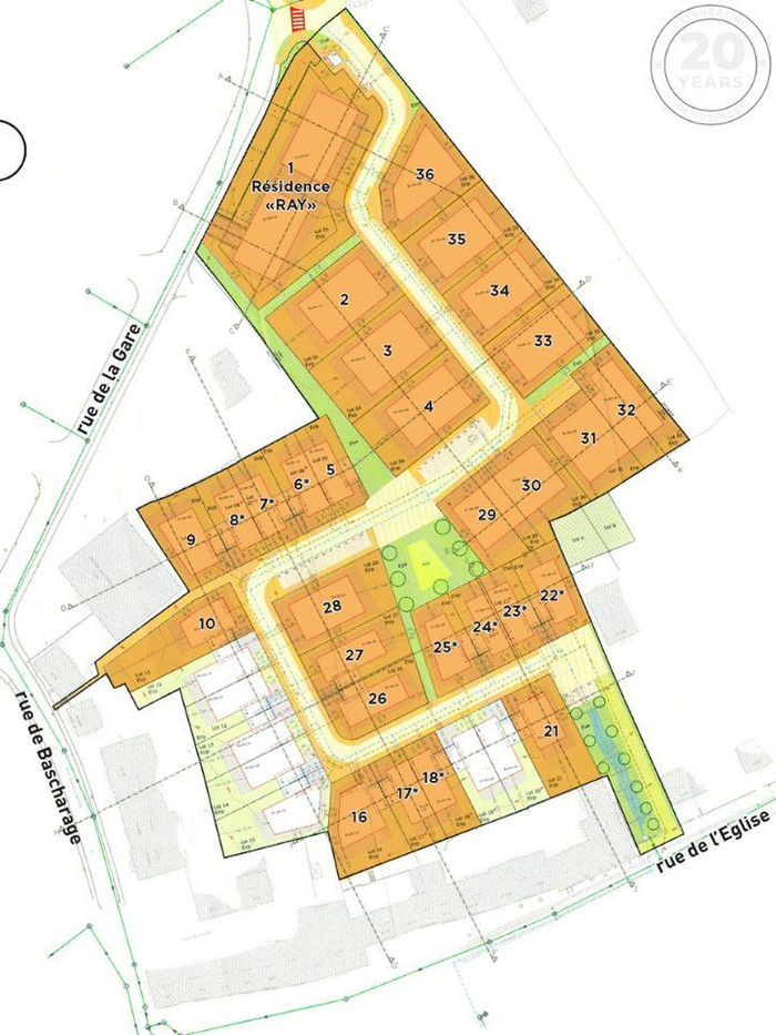
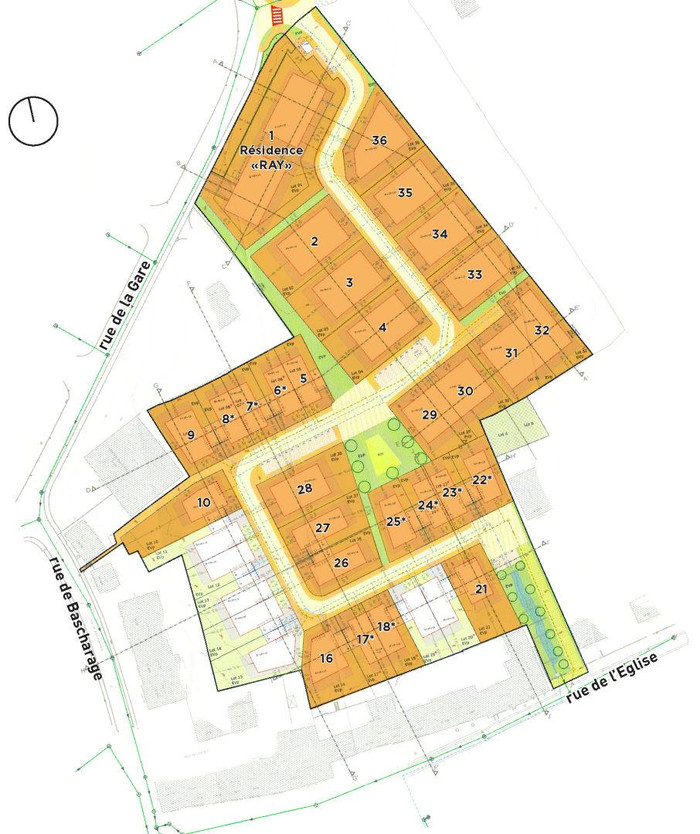
196m2

3

2
Informations
Maison
Pompe à chaleur
, VMC double flux
, Au sol
, Ventilation mécanique
Neuf
